FAQ
ΕΠΙΚΟΙΝΩΝΊΑ
EL
EN
Η ΕΤΑΙΡΊΑ
ΜΈΘΟΔΟΙ ΚΑΤΑΣΚΕΥΉΣ
ΚΌΣΤΟΣ ΚΑΤΑΣΚΕΥΉΣ
ΥΠΗΡΕΣΊΕΣ
ΠΡΟΤΆΣΕΙΣ ΣΠΙΤΙΏΝ
ΕΠΑΓΓΕΛΜΑΤΙΚΆ ΚΤΉΡΙΑ
ΒΊΝΤΕΟ
EL
EN
Πρόταση 8
Αρχική
Προτάσεις Σπιτιών
Πρόταση 8
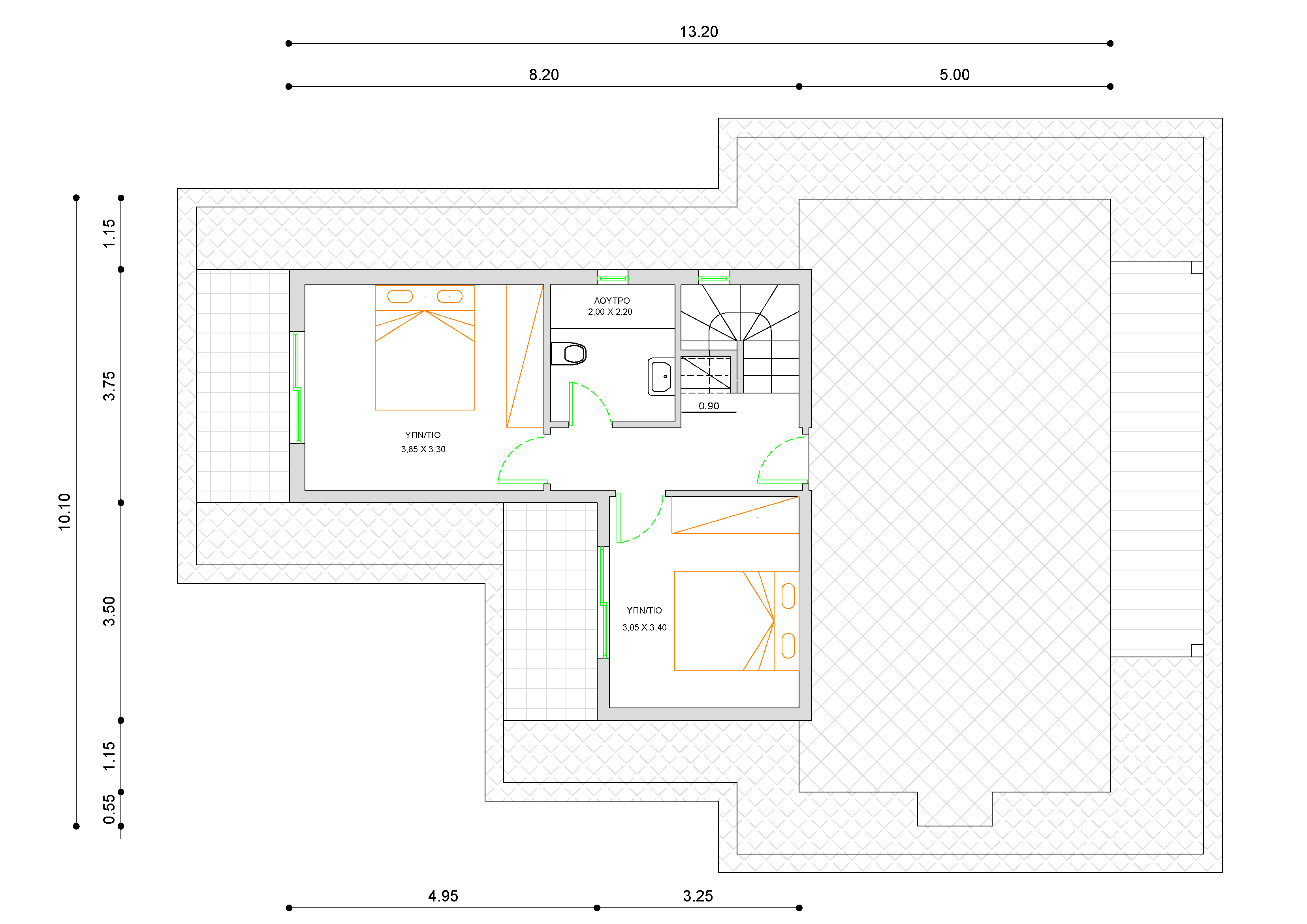
134,00 Μ2 Ισογείου & Ορόφου, Τέσσερα Υπν/Τια, Δύο Μπάνια
Η ιστοσελίδα μας χρησιμοποιεί cookies για να βελτιώσει την εμπειρία περιήγησής σας
Αποδοχή
Η ΕΤΑΙΡΊΑ
ΜΈΘΟΔΟΙ ΚΑΤΑΣΚΕΥΉΣ
ΚΌΣΤΟΣ ΚΑΤΑΣΚΕΥΉΣ
ΥΠΗΡΕΣΊΕΣ
ΠΡΟΤΆΣΕΙΣ ΣΠΙΤΙΏΝ
ΕΠΑΓΓΕΛΜΑΤΙΚΆ ΚΤΉΡΙΑ
ΒΊΝΤΕΟ
FAQ
ΕΠΙΚΟΙΝΩΝΊΑ